|
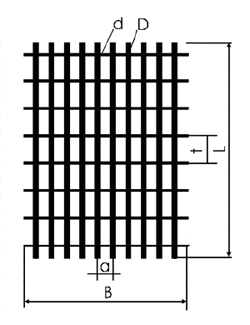
Handset display (type)
|
Diameter wire
|
Wire distance
|
|
Longitudinal D
|
Transverse
|
Longitudinal a
|
Transverse t
|
|
(mm)
|
(mm)
|
(mm)
|
(mm)
|
|
Q 84
|
4,0
|
4,0
|
150
|
150
|
|
Q 92
|
4,2
|
4,2
|
150
|
150
|
|
Q 111
|
4,6
|
4,6
|
150
|
150
|
|
Q 126
|
4,0
|
4,0
|
100
|
100
|
|
Q 131
|
5,0
|
5,0
|
150
|
150
|
|
Q 139
|
4,2
|
4,2
|
100
|
100
|
|
Q 166
|
4,6
|
4,6
|
100
|
100
|
|
Q 188
|
6,0
|
6,0
|
150
|
150
|
|
Q 196
|
5,0
|
5,0
|
100
|
100
|
|
Q 221
|
6,5
|
6,5
|
150
|
150
|
|
Q 238
|
5,5
|
5,5
|
100
|
100
|
|
Q 257
|
7,0
|
7,0
|
150
|
150
|
|
Q 283
|
6,0
|
6,0
|
100
|
100
|
|
Q 331
|
6,5
|
6,5
|
100
|
100
|
|
Q 335
|
8,0
|
8,0
|
150
|
150
|
|
Q 378
|
8,5
|
8,5
|
150
|
150
|
|
Q 385
|
7,0
|
7,0
|
100
|
100
|
|
Q 424
|
9,0
|
9,0
|
150
|
150
|
|
Q 442
|
7,5
|
7,5
|
100
|
100
|
|
Q 503
|
8,0
|
8,0
|
100
|
100
|
|
Q 524
|
10,0
|
10,0
|
150
|
150
|
|
Q 567
|
8,5
|
8,5
|
100
|
100
|
|
Q 577
|
10,5
|
10,5
|
150
|
150
|
|
Q 636
|
9,0
|
9,0
|
100
|
100
|
|
Q 709
|
9,5
|
9,5
|
100
|
100
|
|
Q 785
|
10,0
|
10,0
|
100
|
100
|
|
|
Handset display (type)
|
Diameter wire
|
Wire distance
|
|
Longitudinal D
|
Transverse d
|
Longitudinal a
|
Transverse t
|
|
(mm)
|
(mm)
|
(mm)
|
(mm)
|
|
R 84
|
4,0
|
4,0
|
150
|
250
|
|
R 92
|
4,2
|
4,0
|
150
|
250
|
|
R 111
|
4,6
|
4,0
|
150
|
250
|
|
R 126
|
4,0
|
4,0
|
100
|
250
|
|
R 131
|
5,0
|
4,0
|
150
|
250
|
|
R 139
|
4,2
|
4,0
|
100
|
250
|
|
R 166
|
4,6
|
4,2
|
100
|
250
|
|
R 188
|
6,0
|
4,0
|
150
|
250
|
|
R 196
|
5,0
|
4,2
|
100
|
250
|
|
R 221
|
6,5
|
4,6
|
150
|
250
|
|
R 238
|
5,5
|
4,2
|
100
|
250
|
|
R 257
|
7,0
|
5,0
|
150
|
250
|
|
R 283
|
6,0
|
4,0
|
100
|
250
|
|
R 331
|
6,5
|
4,6
|
100
|
250
|
|
R 335
|
8,0
|
5,0
|
150
|
250
|
|
R 378
|
8,5
|
5,0
|
150
|
250
|
|
R 385
|
7,0
|
5,0
|
100
|
250
|
|
R 424
|
9,0
|
6,0
|
150
|
250
|
|
R 442
|
7,5
|
5,5
|
100
|
250
|
|
R 503
|
8,0
|
6,0
|
100
|
250
|
|
R 524
|
10,0
|
6,0
|
150
|
250
|
|
R 567
|
8,5
|
6,0
|
100
|
250
|
|
R 577
|
10,5
|
6,0
|
150
|
250
|
|
R 636
|
9,0
|
6,0
|
100
|
250
|
|
R 709
|
9,5
|
6,0
|
100
|
250
|
|
R 785
|
10,0
|
6,0
|
100
|
250
|
|